ワンプライスで、こんなに自由。
“定額制オーダー型住宅”「subaco」

「シンプルでモダンなhakoの中には、自由設計ならではのこだわり、アイデア、性能。そしてたくさんのワクワクが詰まっています。 自由設計でありながら、コストが明確な定額制。予算超過の心配もなく、自分にぴったりの住まいが叶います。

2,190万円〜
※価格は参考価格になります。

家づくりに必要なもの全てを、わかりやすいワンプライスでお届けします。

FEATURE 01

選べる大きさ×形

土地に併せて坪数と建物の外枠を選択。

FEATURE 02

自由な間取り

外枠を決めたら中は自由に設計可能!

FEATURE 03

安心・快適な高性能

永住志向を満たす高性能を標準仕様。

FEATURE 04

必要な諸費用も
コミコミ

追加費用で慌てない明快な料金設定。

FEATURE 01

選べる大きさ×形

土地の形状に併せて
3つのサイズからお選びいただけます。

FEATURE 02

自由な間取り

オーダー住宅はプランが決まるまで価格が確定しませんが、subacoは価格の変動がなく、安心してこだわりのプランを実現することができます。

  • 8×7タイプ
  • 7×8タイプ
  • 6×9タイプ
2,190万円〜
(準防火地域の場合+70万円)
【標準設定外工事】があった場合、オプションとなります。

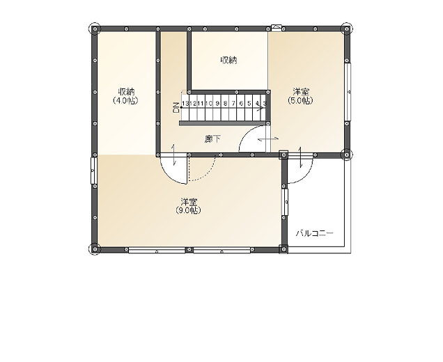
参考プラン

  • 1F施工面積46.37m²
  • 2F施工面積46.37m²
  • 総施工面積92.74m²(28.05坪)

見どころ

  • Point 01

    洗面台に直行できる
    開放的な玄関

    帰ってきてすぐに洗面所まで直行できる2Way玄関。子供たちが手を洗う習慣も身につけやすくなります。

  • Point 02

    混雑しない
    2ドア洗面所

    身支度や家事で人が集まりがちな洗面所は、扉を2つ設けることで流れをスムーズに。朝のバタバタを減らします。

  • Point 03

    キッチンから見通せる
    一直線LDK

    カウンターキッチンで料理をしながら、家族の様子を見守れます。リビングに置いたテレビまで見える配置です。

  • Point 04

    階段下のスペースを
    活用した収納

    毎日通る回数が多いリビング階段の下に収納を配置。お掃除道具や生活用品など使用頻度が高いものはここにまとめられます。

  • Point 05

    寝室とつながる
    大型ウォークインクローゼット

    主寝室の隣にあれば、朝の着替えもスムーズに。広々としたクローゼット内で着替えることもできます。

  • Point 06

    部屋からも出られる
    バルコニー

    洋室から直接つながるバルコニーは、布団を干したり、ちょっとした息抜きに使えるスペースです。

2,190万円〜
(準防火地域の場合+70万円)
【標準設定外工事】があった場合、オプションとなります。

参考プラン

  • 1F施工面積46.37m²
  • 2F施工面積46.37m²
  • 総施工面積92.74m²(28.05坪)

見どころ

  • Point 01

    水廻りを一箇所に集めた
    家事ラク動線

    行き来の多いキッチンと洗面所をまとめて配置。調理の合間に洗濯やお風呂の準備もできます。

  • Point 02

    土間スペース付きの
    ひろびろ玄関

    二人以上並べるゆったりとした玄関。ベビーカーや自転車がそのまま置ける便利な土間スペースも付いています。

  • Point 03

    1階すべてが見渡せる
    中央キッチン

    1階の中央部にキッチンを置くことで、家の中を移動しやすく、また家族の様子に気づきやすくなります。

  • Point 04

    階段下を活かした
    リビング収納

    散らかりがちなリビングは、階段下の収納で解決。スッキリとした部屋で自信をもって友人を招待できます。

  • Point 05

    家族に合わせて間取りを変える
    子供部屋

    のびのびとワンルームのまま使用したり、必要に応じて建具で部屋を間仕切ったり自由に変更できます。

  • Point 06

    取り出しやすい
    オープン収納

    人に見られることの少ない寝室の収納は、扉を無くし、取り出しやすく仕舞いやすいオープン収納にしています。

2,190万円〜
(準防火地域の場合+70万円)
【標準設定外工事】があった場合、オプションとなります。

参考プラン

  • 1F施工面積44.72m²
  • 2F施工面積44.72m²
  • 総施工面積89.43m²(27.05坪)

見どころ

  • Point 01

    無駄な動きをなくす
    生活動線

    キッチン・洗面所・お風呂などの水回りを近くにまとめることで、家事や身支度が効率よくできます。

  • Point 02

    家族とふれあう、つながる
    リビング階段

    自然と家族が顔を合わせる機会がふえ、上下階でのコミュニケーションも取りやすくなります。

  • Point 03

    リビングからつながる
    庭スペース

    リビング横に庭やウッドデッキをつければ、視界が開けて空間に広がりを感じます。家族憩いの場としても使えます。

  • Point 04

    開放感たっぷりの
    仕切りなし玄関

    あえて玄関とリビングの仕切りを無くすことで、リビングの大空間が目に入り、家に帰った瞬間の開放感が生まれます。

  • Point 05

    約9帖もあるゆとりの
    主寝室

    寝室はしっかり広さを確保することで、寝るだけの場所ではなく、アレンジしやすい大人のくつろぎ空間になります。

  • Point 06

    フレキシブルに使える
    子供部屋

    子供の成長やライフスタイルの変化に合わせて間取りを変更することができ、使用用途が広がります。

  • 8×7タイプ
  • 7×8タイプ
  • 6×9タイプ
FEATURE 03

安心・快適な高性能

家族の安心安全を守るため、
家の資産価値を守るため
地震・災害への備えを万全にし、
耐久性にこだわりました。

耐震性能最高ランク
「耐震等級3」を取得

建築基準法が定める〈耐震等級1〉に対して、この基準を1.5倍も上回る、最高ランクの「耐震等級3」を取得しています。

耐震性能最高ランク「耐震等級3」を取得

もっと安心を実現

住まいの強度を高めるピン工法を採用
住まいの強度を高めるピン工法を採用
従来工法より3倍もの強度、剛床構造を採用
従来工法より3倍もの強度、剛床構造を採用
耐風も最高ランク
《耐風等級2》を取得
耐風も最高ランク《耐風等級2》を取得
もっと見る

断熱・気密性

UA値0.46前後&C値0.5以下

サラホームのUA値は北海道の長期優良住宅の基準(0.46)と同等。国内トップレベルの断熱性能です。C値においても、神奈川県に要求されているC値5.0を大きく下回っています。

断熱・気密性を高めることで
家の耐久性もUPします!

結露を防ぐことで、それに伴うリスクを回避できます。

カビ・ダニの
発生
カビ・ダニ
水分による
壁などの劣化
水分劣化
内部からの
躯体の腐食
腐食
※UA値とは
「熱がどれだけ外に逃げるか」を数値化したもの。断熱性や気密性などから計算ができ、値が小さいほど、熱が逃げにくいということになります。
※C値とは
『UA値』と並んで、住まいの心地よさを測る上で目安となるもの。建物の床面積1㎡あたりにある隙間の面積を表す値で、値が小さいほど気密性が高いということになります。
もっと見る
FEATURE 04

必要な諸費用もコミコミ

住宅購入の資金計画を立てる際、忘れてはいけない諸費用。
土地建物の価格とは別にかかってくる費用になりますが、下記の項目についてはコミコミの定額の中に含まれています。

屋外給排水工事費
管理諸経費
地盤調査費
検査・申請立会い費
基本電気工事費
地盤保証保険費
ラインナップ一覧に戻る
オーダー型住宅
「いえらぼ」を見る
セレクト型住宅
「レスモア」を見る
サラホームの家を
モデルハウス見学受付中
スタッフに家づくりの相談をしてみる!
個別相談会開催中